投资热线

0431-81187096 / 81187098

  政务大厅服务热线

0431-81187301

首页>中韩示范区管理委员会部门>中韩示范区城乡融合发展局(长春市规划和自然资源局中韩示范区分局)>重点领域基层政务公开

中韩(长春)示范区政府信息公开专栏  >>  中韩示范区城乡融合发展局(长春市规划和自然资源局中韩示范区分局) >> 政府信息公开基础平台

索  引 号: /2023-43884
分  类: 国土空间规划编制 ;  公告
发文机关: 中韩(长春)国际合作示范区城乡融合发展局
成文日期: 2023年12月04日
标      题: 中韩示范区国际新都项目地块四(宗地号:220183110704GB00088)建设用地规划条件调整(已结束)
发文字号:
发布日期: 2023年12月04日
索引号: /2023-43884 分  类: 国土空间规划编制 ;  公告
发文机关: 中韩(长春)国际合作示范区城乡融合发展局 成文日期: 2023年12月04日
标  题: 中韩示范区国际新都项目地块四(宗地号:220183110704GB00088)建设用地规划条件调整(已结束)
发文字号: 发布日期: 2023年12月04日
中韩示范区国际新都项目地块四(宗地号:220183110704GB00088)建设用地规划条件调整(已结束)
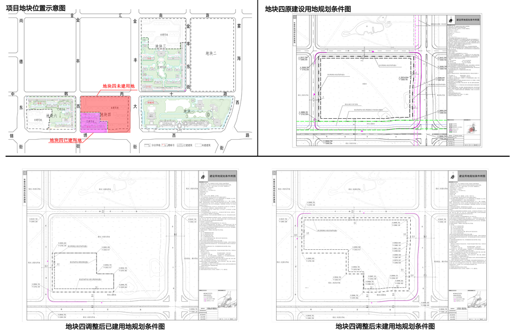
  一、项目位置     
  中韩(长春)国际合作示范区中韩(长春)国际合作示范区中韩丙十路以南、锦绣西路以北、金丰大街以西、金丰西街以东项目用地。(详见图示) 
  二、调整原因
  基于长春德胜房地产开发有限公司经营发展的实际情况,为顺利推进已建工程各项验收和不动产权证办理等工作,保障业主合法权益,经长春德胜房地产开发有限公司申请,示范区“保交楼”专班研究,拟对国际新都项目(地块四)已建用地和未建用地部分进行分宗调整。     
  三、调整内容
  (一)用地范围
  依据地块四原建设工程规划许可证附图,地块四总用地面积6.0119公顷,结合该地块实际建设情况,将地块四分为已建用地和未建用地两部分,其中已建用地面积1.5371公顷,未建用地面积4.4748公顷。
  (二)规划指标
  地块四已建用地和未建用地配建指标符合原规划条件相关要求。
  (三)配套设施
  1、养老用房
  地块四已建用地需配套养老用房27.00平方米,在地块一售楼中心北侧样板间(约1495平方米)统一配建;地块四未建用地按相关要求配建。地块四内4-1号楼已建养老用房约100.70平方米,调整为物业用房。
  2、社区用房
  地块四已建用地需配套社区服务用房40.50平方米,在地块一售楼中心北侧样板间(约1495平方米)统一配建;地块四未建用地按相关要求配建。
  3、物业用房
  地块四已建用地需配套物业用房104.00平方米,在地块四已建用地4-1号楼(原养老用房约100.70平方米)配建,另在地块六已建用地6-6号楼(已建物业用房约795.82平方米)配建;地块四未建用地按相关要求配建。
  4、幼儿园
  地块四已建用地需配套1班幼儿园,在地块三已建用地3- S1号楼(已建12班幼儿园)统一配建;地块四未建用地按相关要求配建。
  四、公示时限
  2023年12月4日至2023年12月12日(7个工作日)
  五、公示地点
  (一)中韩示范区国际新都项目地块四南出入口处(锦绣西路侧出入口)
  (二)中韩(长春)国际合作示范区官方网站
  本项目调整征求相关利害关系人意见,如有意见请在公示期内(2023年12月4日至2023年12月12日)将有关意见(署真实姓名、身份证号码、联系地址和联系方式)书面反映至长春市规划和自然资源局中韩(长春)国际合作示范区分局(联系电话:0431-81186863,联系地址:中韩示范区金汇大路1577号中韩大厦1820室),逾期视为无意见处理。
公示原图.jpg